The cliff face
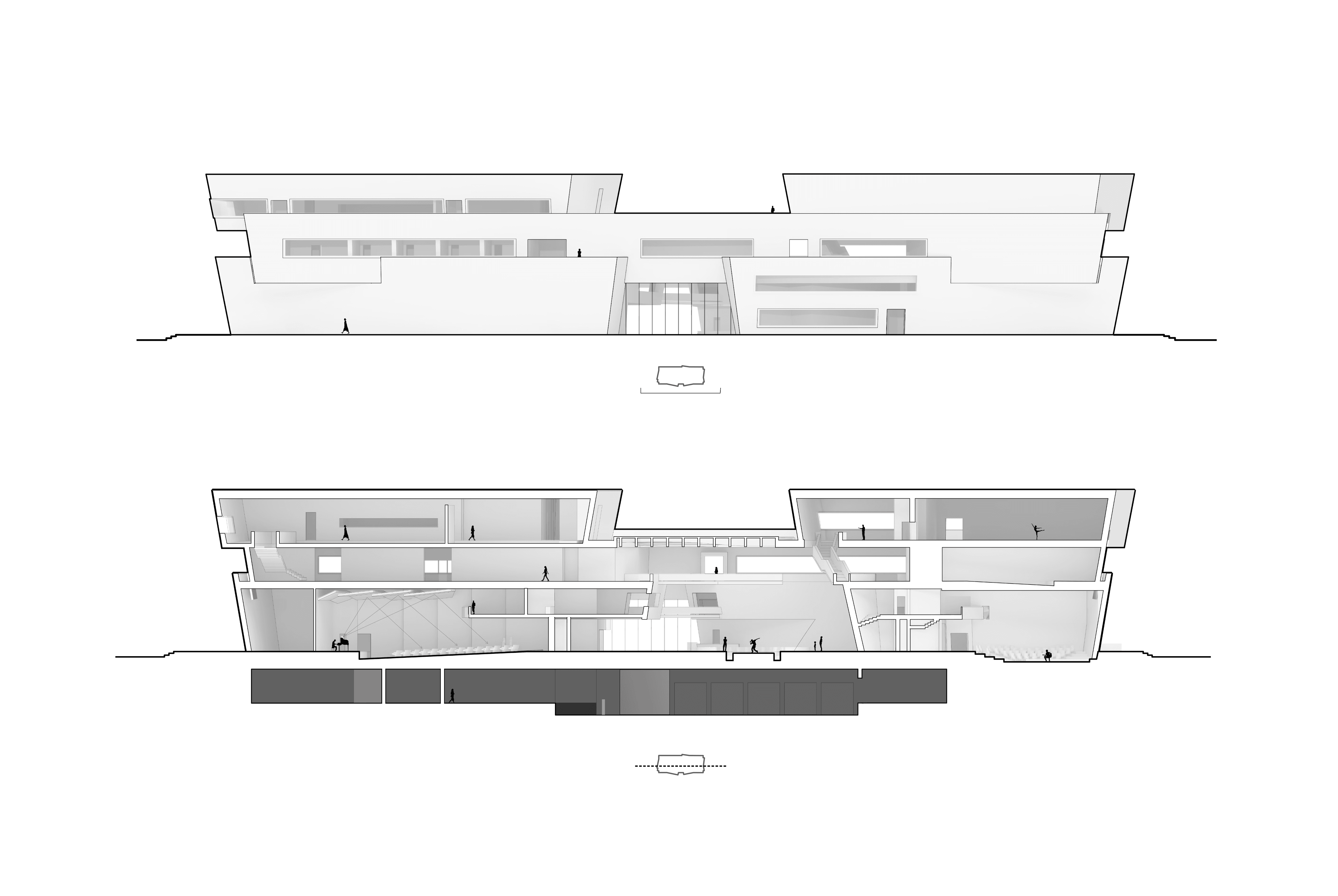
The Cliff Face is a music and cultural center in Bjørvika, Oslo, composed of monolithic volumes inspired by the form of a cliff. The project responds to both contemporary and historic surroundings and is oriented toward the sea to frame views of the Oslo Fjord while maintaining key city sightlines.
The volumes are stacked around a central void that functions as an open stage and lobby, forming the social core of the building and connecting levels through bridges and balconies. The program includes concert halls, studios, offices, and public spaces such as a jazz bar, restaurant, and rooftop terrace, ensuring activity beyond performance hours.
Through its materiality and volumetric hierarchy, the project seeks to create an active and accessible cultural building that contributes to the public life of Bjørvika.
Created at:
The Oslo school of architecture and design
Date:
2025
Role:
Participants:




























